1463 Braemar Street

Glenmore, Kelowna

1463 Braemar Street, Glenmore, Kelowna

$874,900


Bedrooms: 5

Bathrooms: 3

Living Area: 2,255 sqft


About this House

in Glenmore, Kelowna

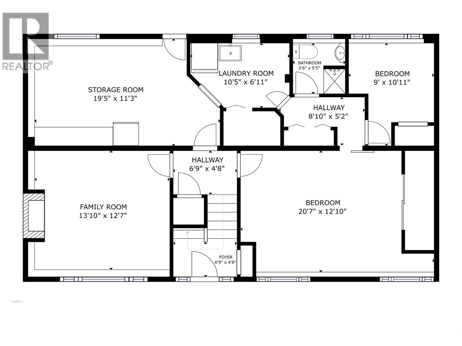
Discover an exceptional opportunity in a PRIME old Glenmore location!! This bright & spacious 5-bedroom, 3-bathroom home offers over 2200 square feet of comfortable living space, in a family area, just minutes from downtown, Okanagan Lake, shopping, schools & just steps from bike path, Apple Bowl stadium & bus stops. The main floor features an open-concept layout w/updated kitchen overlooking a generous, fully fenced backyard, perfect for entertaining & gardening. The inviting living room incl. new blinds & a cozy gas fireplace, while the adjacent dining area, w/french doors, leads to a sunroom offering serene mountain views. The main level also hosts three well-proportioned bdrms, incl. the primary bdrm w/modern barn door leading to an updated 2-piece ensuite. Downstairs, the home continues to impress w/newer flooring throughout. A large family room w/gas fireplace provides an ideal space for gatherings. The lower level also incl. a sizable storage/workshop/flex room w/direct access to the carport, a three-piece bathroom, a laundry area & two additional bdrms. Outside, the property boasts fantastic curb appeal w/low maintenance front landscaping & a backyard designed for enjoyment, featuring a nice irrigated green space & a massive new deck & patio area. Parking is ample w/single carport, two additional uncovered spots & plenty of street parking. Currently zoned MF1, w/future C-NHD designation, this home presents a fantastic investment opportunity w/6 bdrm rental potential. (id:14735)

Listed by Century 21 Assurance Realty Ltd.

MLS® Reciprocity Brought to you by your friendly REALTORS® through the MLS® System and OMREB (Okanagan Mainland Real Estate Board), courtesy of Stuart McFadden for your convenience.
The information contained on this site is based in whole or in part on information that is provided by members of The Canadian Real Estate Association, who are responsible for its accuracy. CREA reproduces and distributes this information as a service for its members and assumes no responsibility for its accuracy.


Photo 1 at 1463 Braemar Street, Glenmore, Kelowna

Photo 1

Photo 2 at 1463 Braemar Street, Glenmore, Kelowna

Photo 2

Photo 3 at 1463 Braemar Street, Glenmore, Kelowna

Photo 3

Photo 4 at 1463 Braemar Street, Glenmore, Kelowna

Photo 4

Photo 5 at 1463 Braemar Street, Glenmore, Kelowna

Photo 5

Photo 6 at 1463 Braemar Street, Glenmore, Kelowna

Photo 6

Photo 7 at 1463 Braemar Street, Glenmore, Kelowna

Photo 7

Photo 8 at 1463 Braemar Street, Glenmore, Kelowna

Photo 8

Photo 9 at 1463 Braemar Street, Glenmore, Kelowna

Photo 9

Photo 10 at 1463 Braemar Street, Glenmore, Kelowna

Photo 10

Photo 11 at 1463 Braemar Street, Glenmore, Kelowna

Photo 11

Photo 12 at 1463 Braemar Street, Glenmore, Kelowna

Photo 12

Photo 13 at 1463 Braemar Street, Glenmore, Kelowna

Photo 13

Photo 14 at 1463 Braemar Street, Glenmore, Kelowna

Photo 14

Photo 15 at 1463 Braemar Street, Glenmore, Kelowna

Photo 15

Photo 16 at 1463 Braemar Street, Glenmore, Kelowna

Photo 16

Photo 17 at 1463 Braemar Street, Glenmore, Kelowna

Photo 17

Photo 18 at 1463 Braemar Street, Glenmore, Kelowna

Photo 18

Photo 19 at 1463 Braemar Street, Glenmore, Kelowna

Photo 19

Photo 20 at 1463 Braemar Street, Glenmore, Kelowna

Photo 20

Photo 21 at 1463 Braemar Street, Glenmore, Kelowna

Photo 21

Photo 22 at 1463 Braemar Street, Glenmore, Kelowna

Photo 22

Photo 23 at 1463 Braemar Street, Glenmore, Kelowna

Photo 23

Photo 24 at 1463 Braemar Street, Glenmore, Kelowna

Photo 24

Photo 25 at 1463 Braemar Street, Glenmore, Kelowna

Photo 25

Photo 26 at 1463 Braemar Street, Glenmore, Kelowna

Photo 26

Photo 27 at 1463 Braemar Street, Glenmore, Kelowna

Photo 27

Photo 28 at 1463 Braemar Street, Glenmore, Kelowna

Photo 28

Photo 29 at 1463 Braemar Street, Glenmore, Kelowna

Photo 29

Photo 30 at 1463 Braemar Street, Glenmore, Kelowna

Photo 30

Photo 31 at 1463 Braemar Street, Glenmore, Kelowna

Photo 31

Photo 32 at 1463 Braemar Street, Glenmore, Kelowna

Photo 32

Photo 33 at 1463 Braemar Street, Glenmore, Kelowna

Photo 33

Photo 34 at 1463 Braemar Street, Glenmore, Kelowna

Photo 34

Photo 35 at 1463 Braemar Street, Glenmore, Kelowna

Photo 35

Photo 36 at 1463 Braemar Street, Glenmore, Kelowna

Photo 36

Photo 37 at 1463 Braemar Street, Glenmore, Kelowna

Photo 37

Photo 38 at 1463 Braemar Street, Glenmore, Kelowna

Photo 38

Photo 39 at 1463 Braemar Street, Glenmore, Kelowna

Photo 39

Photo 40 at 1463 Braemar Street, Glenmore, Kelowna

Photo 40

Photo 41 at 1463 Braemar Street, Glenmore, Kelowna

Photo 41

Photo 42 at 1463 Braemar Street, Glenmore, Kelowna

Photo 42

Photo 43 at 1463 Braemar Street, Glenmore, Kelowna

Photo 43

Photo 44 at 1463 Braemar Street, Glenmore, Kelowna

Photo 44

Photo 45 at 1463 Braemar Street, Glenmore, Kelowna

Photo 45

Photo 46 at 1463 Braemar Street, Glenmore, Kelowna

Photo 46

Photo 47 at 1463 Braemar Street, Glenmore, Kelowna

Photo 47

Photo 48 at 1463 Braemar Street, Glenmore, Kelowna

Photo 48

Photo 49 at 1463 Braemar Street, Glenmore, Kelowna

Photo 49

Photo 50 at 1463 Braemar Street, Glenmore, Kelowna

Photo 50

Photo 51 at 1463 Braemar Street, Glenmore, Kelowna

Photo 51

Photo 52 at 1463 Braemar Street, Glenmore, Kelowna

Photo 52

Photo 53 at 1463 Braemar Street, Glenmore, Kelowna

Photo 53

Photo 54 at 1463 Braemar Street, Glenmore, Kelowna

Photo 54

Photo 55 at 1463 Braemar Street, Glenmore, Kelowna

Photo 55

Photo 56 at 1463 Braemar Street, Glenmore, Kelowna

Photo 56

Photo 57 at 1463 Braemar Street, Glenmore, Kelowna

Photo 57

Photo 58 at 1463 Braemar Street, Glenmore, Kelowna

Photo 58

Photo 59 at 1463 Braemar Street, Glenmore, Kelowna

Photo 59

Photo 60 at 1463 Braemar Street, Glenmore, Kelowna

Photo 60

Photo 61 at 1463 Braemar Street, Glenmore, Kelowna

Photo 61

Photo 62 at 1463 Braemar Street, Glenmore, Kelowna

Photo 62

Photo 63 at 1463 Braemar Street, Glenmore, Kelowna

Photo 63

Photo 64 at 1463 Braemar Street, Glenmore, Kelowna

Photo 64

Photo 65 at 1463 Braemar Street, Glenmore, Kelowna

Photo 65

Photo 66 at 1463 Braemar Street, Glenmore, Kelowna

Photo 66

Photo 67 at 1463 Braemar Street, Glenmore, Kelowna

Photo 67

Photo 68 at 1463 Braemar Street, Glenmore, Kelowna

Photo 68

Photo 69 at 1463 Braemar Street, Glenmore, Kelowna

Photo 69


Find Out More Or Request A Showing

inquire